


























LRP Real Estate va propune sper cumparare un proiect nefinalizat in Ciolpani/Izvorani, intr-o zona in plina dezvoltare intre Padurea Snagov si Parcul National Scrovistea.
Proiectul se prezinta sub forma unei vile de 5 camere(la rosu) cu o suprafata totala de 325 mp, repesctiv suprafata utila de 253 mp si construita pe un teren(in plan secundar) in suprafata de 1.000mp.
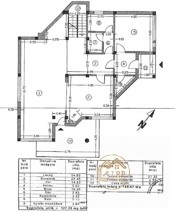
Vila are regim de inaltime P+1, este construita din cadre de beton/caramida eficienta si este dispusa astfel:
- parter: living generos 55mp, bucatarie 23mp, hol, antreu, dormitor/birou,sas, baie, spalatorie, 2 terase;
-etaj: dormitor1(matrimonial cu baie si dressing), dormitor2, dormitor3, baie, spatiu depozitare, 2 balcoane.
Amprenta la sol a vilei este de 185mp rezultand astfel curte libera de 815mp iar accesul la teren se face din strada Complex Olimpic/DJ101N(din DN1 spre Izvorani).
Proiectul are receptia facuta in mai 2009, perioada in care au incetat lucrarile de finalizare ale constructiei.
Imobilul dispune de cadastru/intabulare si este liber de sarcini.
Utilitatile (curent, gaz, apa si canalizare) se afla la limita de proprietate.
Nu ezitati sa ne contactati pentru mai multe detalii sau pentru a programa o vizionare!
ID oferta:P102632
10 Pași pentru a crește valoarea de vânzare a casei tale