












Vă propunem spre vânzare o vilă individuală de excepție, finalizată în anul 2025, situată într-o zonă liniștită și în plină dezvoltare din Pantelimon – strada Tineretului.
Această proprietate reprezintă echilibrul perfect între confortul unei locuințe moderne, eficiență energetică și spațiu exterior generos.
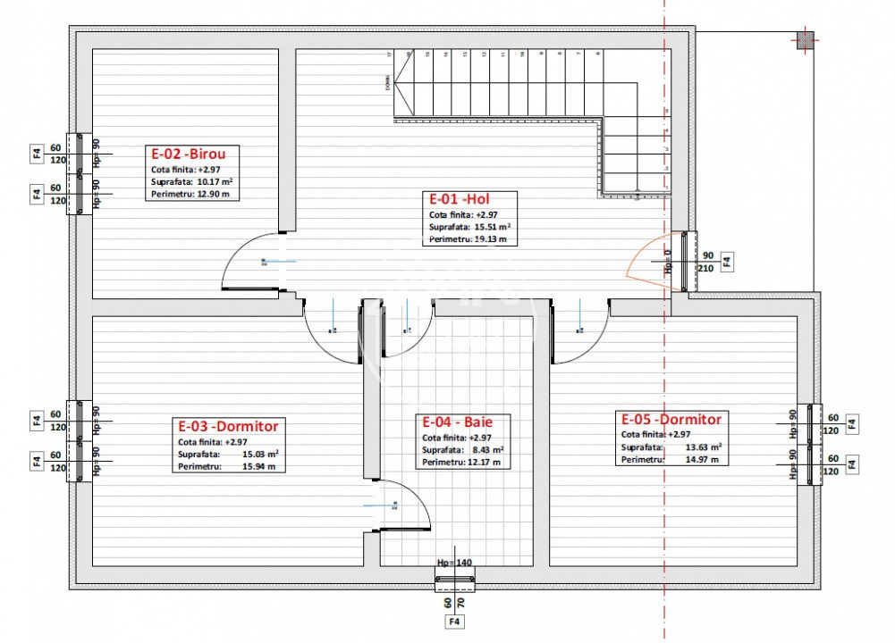
Desfășurată pe un regim de înălțime P+1, casa oferă o suprafață utilă de 128 mp (totală 135 mp), fiind inteligent compartimentată pentru a răspunde nevoilor unei familii moderne:
Parter: Zonă de zi luminoasă și spațioasă, bucătărie (închisă), grup sanitar și acces direct către terasă – locul ideal pentru relaxare.
Etaj: 3 dormitoare spațioase, deservite de băi moderne și un balcon care oferă o priveliște deschisă asupra cartierului.
Fiind o construcție nouă (2025), imobilul beneficiază de cele mai actuale standarde în construcții:
Confort termic superior: Centrală proprie pe gaz și sistem de încălzire în pardoseală pe ambele niveluri.
Utilități complete: Branșament la toate utilitățile zonei (gaz, curent, apă, canalizare).
Izolație eficientă(polistiren eps100,spuma poliuretanica,etc) și finisaje de calitate.
Terenul in suprafata totala de 340 mp oferă o curte liberă generoasă, perfectă pentru amenajarea unui spațiu verde, loc de joacă pentru copii sau parcare (2 locuri).
Intimitate: Vilă individuală (nu este duplex/înșiruită).
Locație: Acces facil către București, zonă rezidențială nouă.
Mutare imediată: Construcție finalizată recent.
Pentru mai multe detalii sau programarea unei vizionări, vă rugam să ne contactați!
LRP Real Estate – Partenerul tău de încredere în imobiliare.
ID oferta:P240123
10 Pași pentru a crește valoarea de vânzare a casei tale